Entwickelte BIM-Modelle
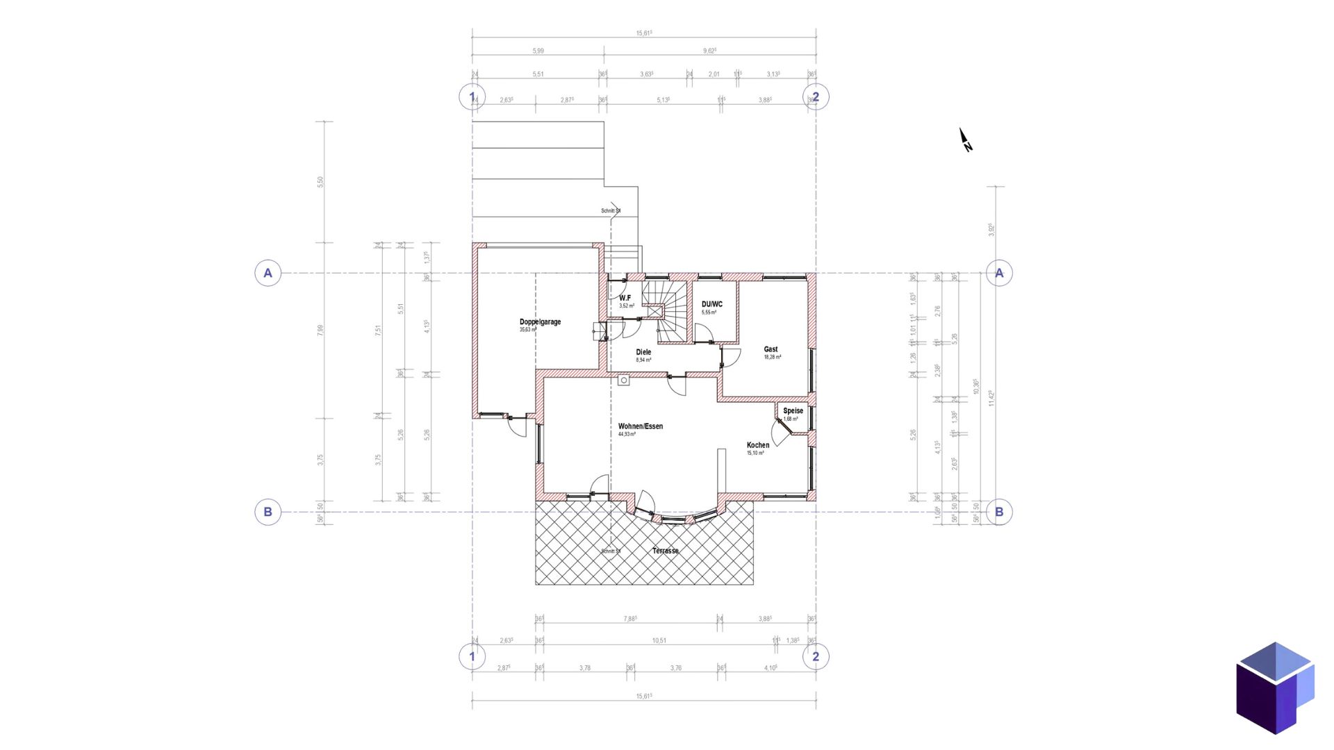
Doppelhaus
Hagen, Deutschland
BIM-Modellierung für ein Doppelhausprojekt in Deutschland, mit Schwerpunkt auf dem Übergang von 2D-Architekturplänen zu einem detaillierten 3D-Modell. Der Auftragsumfang umfasste die umfassende Modellentwicklung und die Erstellung der Bauunterlagen, wobei Genauigkeit und Konsistenz in allen Projektphasen gewährleistet wurden.

LOD 350
Berufsbildungszentrum
Vila nova de Famalicão, Portugal
Umfassende BIM-Modellierung eines Berufsbildungsgebäudes, einschließlich eines großen Eingangsplatzes, der harmonisch mit den umliegenden Kulturräumen verbunden ist. Das Modell wurde in Revit auf der Grundlage der vom Kunden bereitgestellten CAD-Dokumentation entwickelt und umfasst alle architektonischen und baulichen Elemente.

2.500 m2 | LOD 350
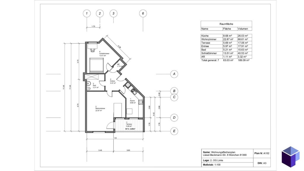
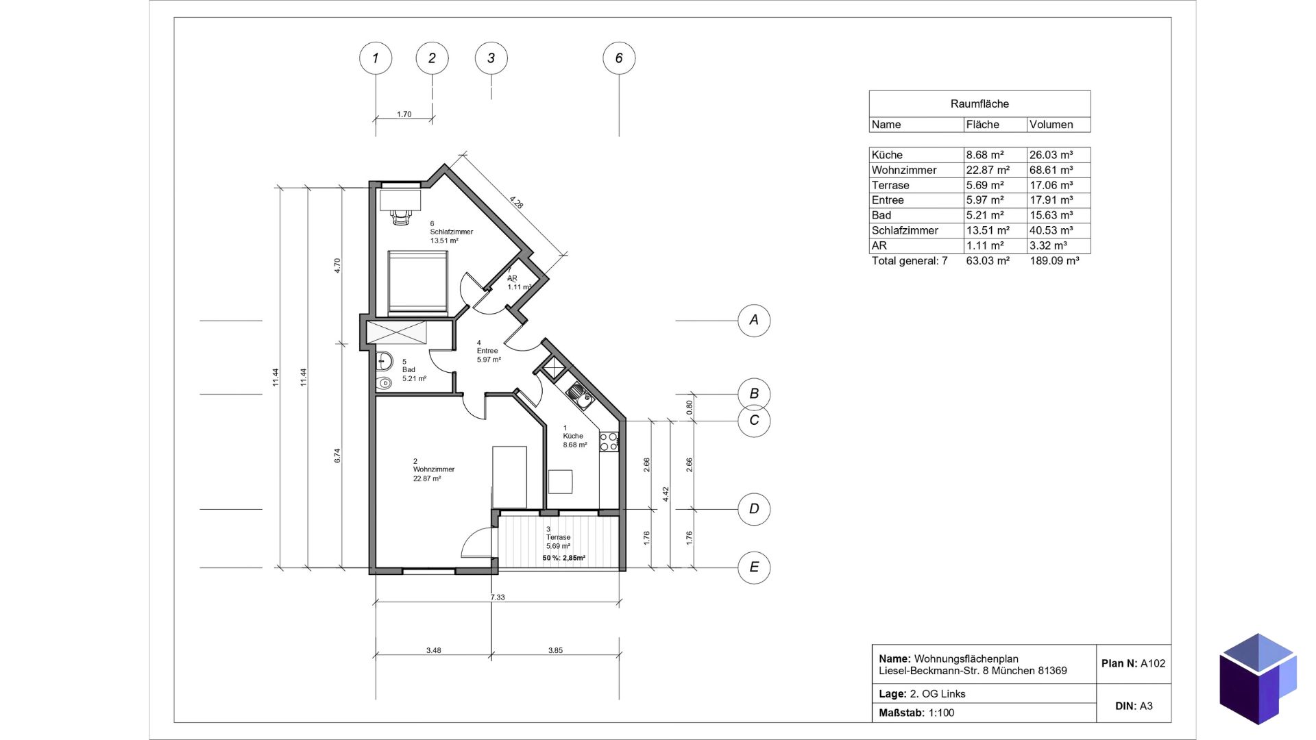
Wohnfläche Precision Model
München, Deutschland
3D-Modell einer Wohnung für präzise Wohnflächenberechnung (WoFlV) und Optimierung des Innenraums. Umfasst detaillierte Raumpläne, Flächenangaben und volumetrische Visualisierung für genaue Berechnungen und Designanpassungen

63,03 M2 | LOD 300
Architektonisches 3D modell
München, Deutschland
Architektonisches 3D-Modell mit vollständiger technischer Dokumentation im DWG-Format. Bietet detaillierte volumetrische Visualisierung sowie präzise 2D-Pläne für Projektanalyse und -entwicklung

125 M2 | LOD 300
Wohnkomplex
El Ejido, Spanien
Entwicklung eines detaillierten BIM-Modells für einen Wohnkomplex mit mehreren Wohneinheiten und integrierten Freizeitbereichen. Der Auftragsumfang umfasste die architektonische Modellierung der Wohngebäude und gemeinschaftlich genutzten Einrichtungen wie Gärten, Gehwege und Freizeitbereiche, um eine genaue Raumplanung und Koordination zwischen allen Gewerken sicherzustellen.

35.200 M2 | LOD 400
Gemischt genutzter Wohn- und Bildungskomplex
Frankreich
BIM-Entwicklung für einen Entwurf für einen nachhaltigen Komplex mit gemischter Nutzung in Frankreich, bestehend aus Wohneinheiten, einer Bildungseinrichtung und Freizeitbereichen. Das Projekt wurde mit einem starken Fokus auf Umweltfreundlichkeit konzipiert, wobei eine optimale Ausrichtung zur Sonne und natürliche Belüftungsstrategien zum Einsatz kommen.

35.200 M2 | LOD 300
Keller Strukturmodell
München, Deutschland
3D-Modell eines Kellers mit Fokus auf strukturelle Darstellung, inklusive Stützwänden, Verkehrskernen und präziser Säulenmatrix. Umfasst Isometrieansichten, Schnitte und Grundrisse für klare Analyse der Tragwerkslösung und BIM-Koordination

2.200 M2 | LOD 300
Städtischer Wohnkomplex
Madrid, Spanien
BIM-Modellierung eines hochverdichteten Wohnkomplexes im Herzen von Madrid, der moderne Wohnräume mit Freizeitbereichen in einer kompakten städtischen Umgebung verbindet. Das Projekt umfasste die detaillierte architektonische Modellierung mehrerer Wohnblöcke, Innenhöfe und Freizeitbereiche.

18.560 M2 | LOD 350
Parametrische Revit-Familie
LED Backlit Panel Family
Österreich
Die BL Backlit Panel ist eine BIM-optimierte Leuchtenfamilie für Autodesk Revit 2025, entwickelt im LOD 300. Sie bietet effizientes Informationsmanagement durch Shared Parameters und ermöglicht die Mengenextraktion. Eine IES-Datei für präzise photometrische Berechnungen ist enthalten. Die Modellierung umfasst Aluminiumrahmen, PMMA Opal Diffusor und eine elektrische Lichtquelle.

LOD 300
Photovoltaik-Panelstruktur
Spain
Entwicklung einer parametrischen Revit-Familie, die eine modulare Tragstruktur für Photovoltaik-Paneele darstellt. Die Familie umfasst detaillierte tragende Elemente und anpassbare Panelabdeckung. Für den Einsatz in großmaßstäblichen Energieinfrastrukturen oder nachhaltigen Bauprojekten konzipiert, ermöglicht sie Flexibilität bei Array-Abmessungen und Integration in Solarstudien innerhalb von BIM-Workflows.

LOD 350
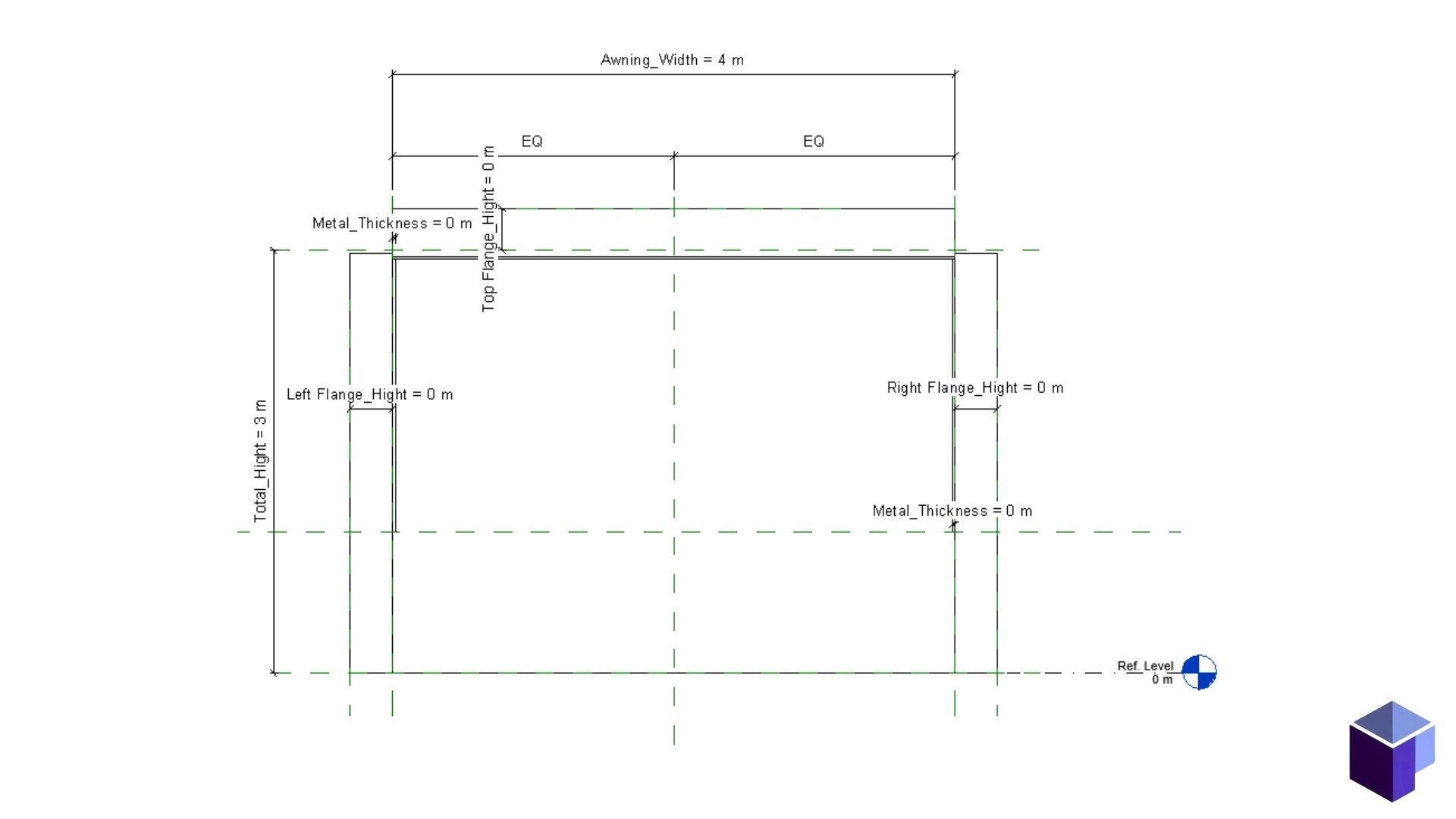
Adaptives Markisen-Vordach
Vereinigte Staaten
Vollständig adaptive parametrische Markise‑Familie in Revit mit Schlüsselparametern wie Breite, Tiefe und Blechdicke für flexible Anpassung. Bestehend aus geneigten adaptiven Ebenen, gesteuert durch Divider und Reporting‑Parameter, erzeugt ein leichtes, präzises Volumen an der Wand.
































